Площадь кладки с откосами: 82.9 м2 Площадь штукатурки с откосами: 325 м2 Стоимость работ по кладке: 107 770 тыс. руб. Стоимость материала: 91 760 тыс. руб. Стоимость работ по штукатурке: 251 100 тыс. руб. Стоимость материала: 91 200 тыс. руб. Итоговая стоимость работ: 358 870 тыс. руб. Итоговая стоимость материала: 182 960 тыс. руб.
Квартира на улице Ленина
р.
р.
Площадь кладки: 50 м2 Площадь штукатурки с откосами 150 м2 Стоимость работ по кладке: 10 000 тыс. руб. Стоимость материала: 10 000 тыс. руб. Стоимость работ по штукатурке: 20 000 тыс. руб. Стоимость материала: 20 000 тыс. руб. Итоговая стоимость работ: 30 000 тыс. руб. Итоговая стоимость материала: 30 000 тыс. руб.
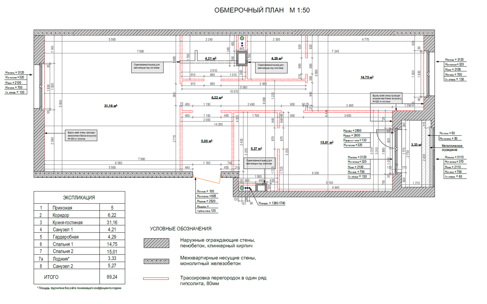
Квартира на Большом Строченовском переулке
р.
р.
Площадь кладки с откосами: 58 м2 Площадь штукатурки с откосами: 212 м2 Стоимость работ по кладке: 75 400 тыс. руб. Стоимость материала: 63 900 тыс. руб. Стоимость работ по штукатурке: 161 700 тыс. руб. Стоимость материала: 62 390 тыс. руб. Итоговая стоимость работ: 219 700 тыс. руб. Итоговая стоимость материала: 126 290 тыс. руб.
Галерея работ
Возведение перегородок
Подготовка к ремонту
Механизированная штукатурка
Готовы начать?
Порядок действий простой: сначала изучите коммерческое предложение, потом заполните техническое задание. Всё по‑честному, без сюрпризов.